home
featured
architecture
architectural robotics
on site projects
technical drawings
structures
urban planning
urban design
energy solutions
building documentation
publications
competitions
digital modelling
media
fashion design
pattern language
additive manufacturing
installations
vision
higher order
apps
interactive being
math - physics
about
contact
home
featured
architecture
architectural robotics
on site projects
technical drawings
structures
urban planning
urban design
energy solutions
building documentation
publications
competitions
digital modelling
media
fashion design
pattern language
additive manufacturing
installations
vision
higher order
apps
interactive being
math - physics
about
contact

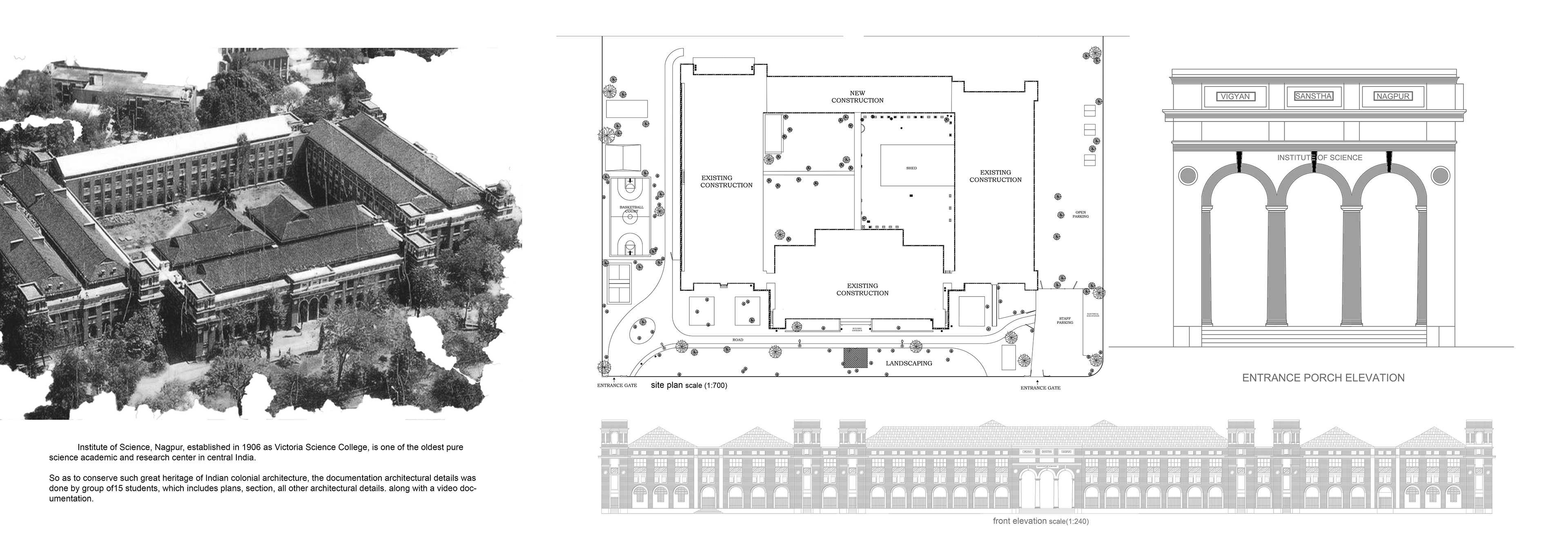
1906

1111111111111111

Insert copy for cookie banner here. Accept Decline